English
Nieuw in verhuur:Atoomweg 350, 3542 AB Utrecht - Foto
Nieuw in verhuur
+10

Atoomweg 350 3542 AB Utrecht € 135,-/m2/jr

  • Kantoor
  • Bouwjaar 1985
  • 423 m² vloeroppervlakte
  • C Energielabel C

Beschrijving

De kantoorgebouwen ‘Central Business Park’ zijn gelegen aan de Reactorweg 301, Atoomweg 350, Atoomweg 400 en de Kobaltweg 11 te Utrecht en bevinden zich op het bedrijventerrein “Lage Weide”. Het betreft hier een kleinschalig kantorenpark, bestaande uit 4 gebouwen. Central Business Park ligt direct aan de doorgaande weg op het bedrijventerrein, binnen korte afstand van de rijksweg A2. Diverse groepen aan ondernemingen, variërend van transport, kantoormatige gebruikers, showrooms en productie-industrie huisvesten in dit gebied.

In de gebouwen zijn moderne, volledig ingerichte ontmoetingsruimtes gecreëerd waar alle huurders van het kantorenpark gebruik van mogen maken. Huurders kunnen hier op een informatieve manier bij elkaar komen. Ook hebben de vier gebouwen een gezamenlijk buitenterrein met terras en zijn er laadpalen aanwezig. Tevens heeft verhuurder de gebouwen recent voorzien van zonnepanelen.

Op dit bedrijventerrein zijn bekende ondernemingen gevestigd als de Hema, Douwe Egberts, WE International B.V. en Fonq.

BEREIKBAARHEID
Eigen vervoer:
Central Business Park ligt op een kleine afstand van de Zuilense Ring. Vanaf hier bent u binnen 2 minuten op de rijksweg A2 en bereikt u eenvoudig de rijkswegen A12, A27 en A28.

Openbaar vervoer:
Met het openbaar vervoer is het kantoorgebouw uitstekend bereikbaar middels meerdere busverbindingen vanaf onder meer Utrecht Centraal Station en het NS-Station Maarssen.

VLOEROPPERVLAK
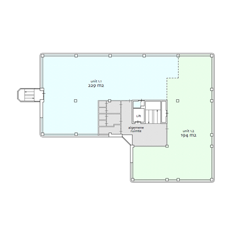
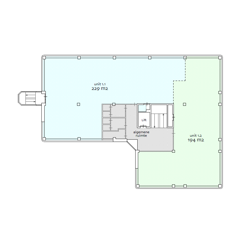
Voor de verhuur is beschikbaar totaal: circa 423 m2 v.v.o., verdeeld als volgt:

Atoomweg 350:
Unit | Metrage | Beschikbaarheid
Unit 1.1 | circa 229 m2 v.v.o. | per direct*
Unit 1.2 | circa 194 m2 v.v.o. | In overleg*

*bovenstaande units zijn te koppelen

Beschikbaarheid Businesscenter Atoomweg 350:
Unit 0.1 | circa 42 m2 v.v.o. | € 699,00 | per direct

PARKEERGELEGENHEID
Op het eigen terrein zijn meer dan voldoende parkeerplaatsen aanwezig met een parkeernorm van 1:45, tevens bevinden zich een groot aantal vrije parkeerplaatsen in de directe omgeving van het gebouw, aan de openbare weg.

OPLEVERINGSNIVEAU
De kantoorruimte wordt opgeleverd in turn-key staat met de volgende voorzieningen:
• gezamenlijke entree;
• huidige systeemplafonds;
• huidige vloerafwerking;
• huidige indeling middels scheidingswanden (deels glas);
• gezamenlijk gebruik toiletgroepen;
• verwarming middels radiatoren voorzien van thermostaatkranen;
• (Gezamenlijke) pantry per verdieping;
• diverse vergaderruimtes;
• mechanische ventilatie aangevuld met airco split-unit (voor zover aanwezig);
• te openen ramen (deels voorzien van lamellen);
• personenlift;
• brandslanghaspels;
• zonwering aan de zonzijde;
• intercominstallatie.

De aansluiting en het verbruik van data- en telecommunicatievoorzieningen zijn niet in de huurprijs begrepen en dienen door huurder zelf te worden verzorgd en betaald.

ENEGERGIELABEL
Het kantoorgebouw is voorzien van Energielabel C.

GLASVEZEL
Er is een glasvezelverbinding aanwezig.

AANVAARDING
Per direct/in overleg.

VOORWAARDEN EN CONDITIES

HUURPRIJS
Kantoorruimte:
€ 135,00 per m² per jaar.

Parkeerplaatsen:
€ 500,00 per parkeerplaats per jaar.

Genoemde bedragen te vermeerderen met omzetbelasting.

BTW-HEFFING
Uitgangspunt is een met btw belaste huurprijs. Indien een huurder niet voldoet aan de voor belaste verhuur gestelde criteria, wordt de huurprijs zodanig verhoogd zodat het voor verhuurder ontstane financiële nadeel volledig wordt gecompenseerd.

HUURTERMIJN
Vanaf 3 (drie) jaar met een aansluitende verlengingsperiode van 3 (drie) jaar.

Kortere/langere huurtermijnen zijn bespreekbaar.

HUURBETALING
De huur en het voorschot servicekosten, te vermeerderen met omzetbelasting, per kwartaal vooruit.

HUURPRIJSHERZIENING
Jaarlijks, voor het eerst 1 (één) jaar na huuringangsdatum, op basis van de wijziging van het maandprijsindexcijfer volgens het consumentenprijsindexcijfer (CPI), reeks voor alle huishoudens (2015 = 100), gepubliceerd door het Centraal Bureau voor de Statistiek (CBS).

SERVICEKOSTEN
€ 65,00 per m² per jaar, te vermeerderen met omzetbelasting, als voorschot op basis van nacalculatie, bij vooruitbetaling per kwartaal te voldoen, voor de kosten van de navolgende leveringen en diensten:
• elektriciteitslevering gehuurde en gemeenschappelijke ruimten inclusief vastrecht en meterhuur;
• waterlevering inclusief vastrecht en meterhuur;
• warmtelevering gehuurde en gemeenschappelijke ruimten inclusief vastrecht en meterhuur;
• schoonmaak gemeenschappelijke ruimten;
• glazenwassen buitenzijde;
• glasverzekering;
• klein onderhoud en periodieke controle van gebouw gebonden installaties;
• vuilafvoer;
• gebruik vergaderruimte;
• overig;
• 5 % administratiekosten over voornoemde leveringen en diensten.

ZEKERHEIDSTELLING
Een bankgarantie, model ROZ, of waarborgsom ter grootte van drie maanden huurpenningen en servicekosten, te vermeerderen met omzetbelasting.

HUUROVEREENKOMST
De op te stellen huurovereenkomst is conform de overeenkomst die door de Raad voor Onroerende Zaken in februari 2015 is vastgesteld en zoals gehanteerd wordt door de Nederlandse Vereniging van Makelaars NVM met de bijbehorende Algemene Bepalingen.

Kaart

Kenmerken

Overdracht

Referentienummer
00035
Status
Nieuw in verhuur
Aanvaarding
In overleg
Aangeboden sinds
Vrijdag 10 april 2026

Bouw

Type object
Kantoor
Soort bouw
Bestaande bouw
Bouwperiode
1985

Oppervlaktes en inhoud

VVO
423 m²
In units vanaf
194 m²

Indeling

Aantal bouwlagen
3

Locatie

Ligging
Bedrijventerrein
Nabij snelweg
Lokale voorzieningen
Restaurant op 500 meter tot 1000 meter
Bereikbaarheid
Bushalte binnen 500 meter
Afrit van de snelweg op 500 meter tot 1000 meter

Energieverbruik

Energielabel
C

Media

Foto's

Plattegronden