English
Nieuw in verhuur:Vliegend Hertlaan 4, 3526 KT Utrecht - Foto
Nieuw in verhuur
+27

Vliegend Hertlaan 4 3526 KT Utrecht € 78,-/m2/jr

  • Kantoor
  • Bouwjaar 1993
  • 2.648 m² vloeroppervlakte
  • A Energielabel A

Beschrijving

ALGEMEEN
Het gebouw aan de Vliegend-Hertlaan 4-8, 3526 KT in Utrecht (https://www.makelpunt-utrecht.nl/locaties/vliegend-hertlaan-4-8-te-huur) betreft de voormalige GEPU-locatie en ligt in het gebied Utrecht Zuidwest, binnen de Merwedekanaalzone. Het complex bestaat uit een combinatie van een kantoorpand en een bedrijfshal en biedt ruime vloeroppervlakken voor uiteenlopende werkfuncties.

De gemeente Utrecht heeft de locatie in 2025 aangekocht met het oog op de toekomstige gebiedsontwikkeling van Merwedekanaalzone Deelgebied 6. Omdat de ontwikkeling van dit gebied naar verwachting vanaf 2029 start, wordt het gebouw tijdelijk beschikbaar gesteld voor gebruik tot en met 31 december 2028.

Het complex bestaat uit:
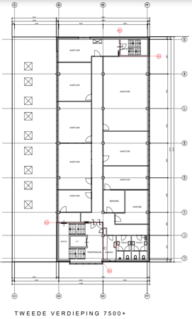
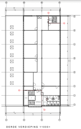
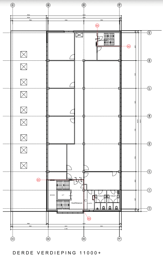
• een kantoorpand van circa 2.648 m² v.v.o., verdeeld over vier verdiepingen met een vergelijkbare indeling;
• een bedrijfshal van circa 5.211 m² v.v.o., met variërende hoogtes en een aantal inpandige kantoorruimten.

De totale oppervlakte bedraagt daarmee circa 7.859 m² v.v.o.

De gemeente Utrecht zoekt één hoofdhuurder of meerdere huurders die het gebouw tijdelijk willen gebruiken binnen de kaders van de huidige bestemming. De huurder(s) kunnen het gebouw geheel of gedeeltelijk gebruiken voor passende bedrijfsactiviteiten.

LOCATIE
De locatie bevindt zich op de hoek van de Zeehaenkade en de Vliegend-Hertlaan in Utrecht Zuidwest. Het gebied maakt onderdeel uit van de Merwedekanaalzone, een stedelijk gebied dat de komende jaren ingrijpend zal transformeren naar een gemengd woon-werkgebied.

De directe omgeving kenmerkt zich momenteel vooral door kantoren en aanvullende bedrijvigheid. In de nabijheid bevinden zich onder andere diverse kantoren laan de Europalaan en een grote diversiteit aan bedrijvigheid tussen de Eendrachtlaan en de Zeehaenkade, variërend van ambachtelijke bedrijven tot horeca en automotive. Direct naastgelegen bevindt zich een tijdelijke sportvoorziening, in de vorm van Padelbanen en aan de andere zijde van het gebouw twee wooncomplexen met circa 500 woningen. Langs de Winthontlaan bevinden zich onder andere een Van der Valk hotel en een Holland Casino.

BEREIKBAARHEID
De bereikbaarheid van de locatie is met de auto zeer goed en onder andere met de bus en metro is er ook een directe verbinding vanaf Utrecht Centraal. Het is slechts 10 minuten fietsen van het centrum van Utrecht en Utrecht Centraal Station ligt op 1.4 kilometer afstand. De bus- en tramverbinding stopt voor de deur.

SPECIFIEK VOOR DE KANTOORRUIMTE

BESCHIKBARE RUIMTE
De beschikbare ruimte binnen het complex is als volgt verdeeld:
- Kantoorruimte circa 2.648 m² v.v.o.
Verdeeld over vier verdiepingen en met een vergelijkbare indeling per verdieping.

Totaal circa 2.648 m² v.v.o.

Kandidaat huurders kunnen zich aanmelden voor een deel of het geheel van het gebouw. Er wordt een openbare procedure gevolgd. Dat betekent dat partijen niet vooraf worden geselecteerd, maar iedereen kan deelnemen.

OPLEVERINGSNIVEAU
Het gebouw wordt verhuurd in de huidige staat.
Kenmerken van het object zijn onder andere:
• combinatie van kantoorruimte en bedrijfshal
• vier kantoorverdiepingen met vergelijkbare indeling en afwerkingsniveau
• aansluiting op stadsverwarming
• afzonderlijke energie(tussen)meters per verdieping en voor delen van de bedrijfshal

Verhuurder zorgt voor instandhouding van het gebouw in een redelijk onderhoudsniveau (conditieniveau 3 conform NEN 2767).

Het kantoorgebouw aan de Vliegend Hertlaan 4A-4D beschikt over een energielabel A (geldig tot 01-10-2029).

HUURCONDITIES
Huurprijzen
Kantoorruimte € 78,- per m² vvo, excl. BTW per jaar
Bedrijfsruimte € 73,- per m² vvo, excl. BTW per jaar

Servicekosten
Het pand is aangesloten op stadsverwarming, elektra en water. De servicekosten zijn bedoeld voor de nutsvoorzieningen en servicecontract liftonderhoud. Dit op basis van nacalculatie.
Servicekosten € 40,- per m² vvo, excl. BTW per jaar

BTW compensatie
Indien niet geopteerd kan worden voor BTW belaste verhuur, wordt de huurprijs, ter compensatie van het financiële nadeel voor de Gemeente Utrecht, verhoogd met 21%.

Parkeren
Het buitenterrein beschikt over 60 parkeerplaatsen die door de huurder(s) gezamenlijk te gebruiken zijn.

HUURTERMIJN
• Beoogde ingangsdatum: 1 mei 2026;
• Huurperiode: tot en met 31 december 2028;
• De huurovereenkomst wordt aangegaan voor bepaalde tijd en zal van rechtswege eindigen;
• Het gehuurde dient uiterlijk 31 december 2028 leeg en schoon te worden opgeleverd.

De huurovereenkomst wordt opgesteld conform het model ROZ 7:230a huurovereenkomst Gemeente Utrecht en de huurovereenkomst eindigt van rechtswege vanwege de geplande gebiedsontwikkeling van Merwedekanaalzone Deelgebied 6.

SELECTIEPROCEDURE
De locatie wordt verhuurd via een openbare selectieprocedure volgens het Didam-arrest, waarbij alle geïnteresseerde partijen gelijke kansen krijgen om zich in te schrijven. Inschrijving volgt via de Gemeente Utrecht. NOBL Real Estate is de verhurend makelaar namens de gemeente Utrecht en begeleid de bezichtigingen en het verhuurproces.

De beoordelingscriteria voor selectie zijn terug te vinden via het gemeentelijk Makelpunt (http://www.makelpunt-utrecht.nl) en zijn vastgelegd in de Selectieleidraad Vliegend Hertlaan 4-8.

De kandidaat huurder(s) dienen een ondernemersplan in te dienen waarin onder andere wordt beschreven:
1. de beoogde activiteiten in het gebouw middels een beknopt ondernemersplan voor de exploitatie tot 31 december 2028;
2. de invulling van het gebruik gedurende de huurperiode;
3. de financiële onderbouwing van de exploitatie en plannen.

Kaart

Kenmerken

Overdracht

Referentienummer
00028
Inrichting
Niet gestoffeerd
Inrichting
Niet gemeubileerd
Status
Nieuw in verhuur
Aanvaarding
Direct
Beschikbaar vanaf
Vrijdag 1 mei 2026
Beschikbaar tot
Zondag 31 december 2028
Aangeboden sinds
Dinsdag 24 maart 2026

Bouw

Type object
Kantoor
Soort bouw
Bestaande bouw
Bouwperiode
1993

Oppervlaktes en inhoud

VVO
2.648 m²
In units vanaf
650 m²

Indeling

Aantal bouwlagen
4

Locatie

Ligging
Aan vaarwater
Bedrijventerrein
Kantorenpark
Lokale voorzieningen
Recreatie binnen 500 meter
Bereikbaarheid
Busknooppunt binnen 500 meter
Treinstation op 2000 meter tot 3000 meter
Afrit van de snelweg binnen 500 meter
Tramhalte binnen 500 meter

Energieverbruik

Energielabel
A

Uitrusting

Aantal parkeerplaatsen
60